00件
最近見た物件
00件
検討リスト
このマチ不動産 箱崎駅前店 > 物件一覧 > ライオンズマンション博多駅南第2 > 物件詳細
こちらは物件の紹介ページです、詳細はお問合せいただきますようお願いします☆
最新の空室確認はこのマチ不動産箱崎駅前店まで♪
092-409-2739です!迅速に対応致します!!!!!♪

| 所在地 | 福岡県福岡市博多区博多駅前2丁目 | ||
|---|---|---|---|
| 交通 | |||
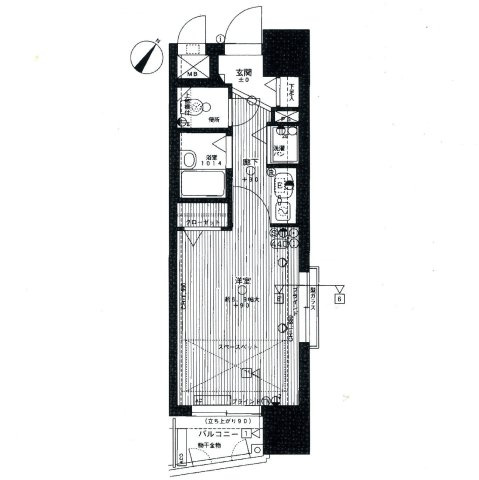
| 間取り/詳細 |
1K 洋室 |
面積/バルコニー面積 | 22.23㎡/- |
| 賃料 | 4.5万円 | 管理費・共益費 | 3,000円 |
| 敷金/礼金/保証金 | 0ヶ月/1ヶ月/- | 償却/敷引 | -/実費 |
| 更新料 | - | 敷金積み増し | - |
| 権利金/雑費 | -/- | 駐車場/月額料金 | 空有/15,400円 (税込) |
| 保険加入/料金 | 有/17,000円 | 保険名/保険期間 | -/2年 |
| 保証人代行義務 | 必加入 | 保証会社 | 全保連 |
| 保証会社詳細 | プランにより異なる | 向き | - |
| 築年月(築年数) | 1992年 4月 (築33年) | 契約期間 | 1年 |
| 種別/構造 | マンション/鉄骨鉄筋コンクリート | 部屋/所在階/階建 | -/ 5階/ 10階建 |
| 総戸数 | - | 現況/入居可能日 | 空家/相談 |
| 特優賃 | - | 取引態様/賃貸区分 | 仲介/一般 |
| 物件番号 | 80488751 | 取引条件の有効期限 | 2026年01月15日 |
| 設備条件 |
|
||
| 備考 |
このマチ不動産 箱崎駅前店です♪ 空室確認・内覧希望・質問等は即時対応致します!! お部屋探しは物件豊富なこのマチ不動産 箱崎駅前店へ。どこよりも安くて素敵なお部屋を御紹介致します♪ |
||
| 条件(その他) | 安心サポート:880円(月額) | ||
| 取扱会社 |
|
||
| QRコード |
このQRコードを読み取ることで、スマホでも物件情報を確認できます。 |
||
※地図上に表示される物件の位置は付近住所に所在することを表すものであり、実際の物件所在地とは異なる場合がございます。
福岡市博多区以外の市区町村から探す
福岡市博多区の町名から探す